PLAN

プラン

  • センタービル
  • アネックスビル

最小26坪~最大940坪の柔軟性。
組み合わせであらゆる面積ニーズに対応。

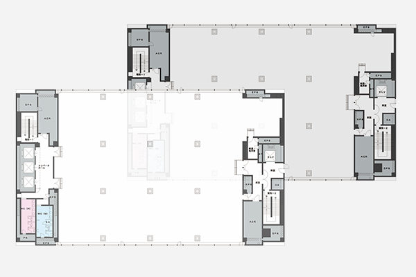
センタービル
  • 1区画(約26坪)
    1区画(約26坪)
    TRCのプレミアムコンパクトオフィスです。この区画でも大型ビルのサービス施設を利用できるのが魅力です。入居後の拡張も可能です。​
    360°VR内覧
  • 2区画(約52坪)
    2区画(約52坪)
    26坪単位で自由に組み合わせることができます。2区画以上だと入口を来客用や社員用などで分けることもできます。入居後の縮小・拡張も可能です。
    360°VR内覧
  • 4区画(約104坪)
    4区画(約104坪)
    4区画を利用することでより広いワンフロア空間が確保でき、レイアウトの自由度も高まります。来客用・社員用などの動線をさらに明確に分けることも可能です。

336坪 整形な間取り
1フロア・1テナント共用部専用的に利用可。

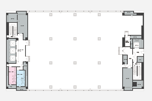
センタービル
  • 366坪区画
    366坪区画
    フロア貸しとなります。個別自動制御が可能な空調システムや、IDカードによる防犯システムなど、機能的なオフィスです。
    360°VR内覧
  • 372坪区画
    672坪区画
    2フロア貸しとなります。全9フロアございますので、ぜひ空室確認ください。
    360°VR内覧

一般的なオフィスとの比較

TRCオフィスビル 一般的なオフィス
広さ 26~940坪、柔軟にカスタマイズ可能 広さが限定的、借りすぎや手狭の問題あり
価格 大型ビルでリーズナブル 坪単価が高い(浜松町で約3倍)
その他 コスト 礼金・更新料・空調費なし 各種コストが発生
施設 飲食・医療・カーシェアなど併設、搬入口あり オフィス機能のみが多い
アクセス 駅徒歩1分、品川・東京・羽田・ICすぐ 駅近+主要拠点アクセス良好物件は少ない
駐車場 1,600台以上、カーシェア 直結駐車場でも100台程度
管理 24時間管理人常駐、共用部も清潔 管理体制にばらつき、緊急対応に不安
設備 動力電源、給排水対応、BCP機能強化 中小ビルでは対応不可

ご利用までの流れ

  1. お問い合わせ
  2. ご内覧
  3. お申し込み
  4. 審査
  5. ご契約
  6. 利用開始

ご内覧からご利用開始まで
最短2週間程度かかります。
(諸条件により変動)

TRCなら保証金のみ!
礼金・更新料・空調費すべてゼロ!

TRCなら
保証金のみ
  • 礼金
    なし
  • 更新料
    なし
  • 空調費
    なし

※空調費用に関しては基準運転時間外は別途運転費用を頂戴しております。